Auch wenn der Zeitplan etwas überschritten wurde, jetzt ist es vollbracht: Die alten Stallgebäude, die seit vielen Jahren ungenutzt als Bauruine dort standen, sind samt allen Fundamenten abgerissen.

Für den Bau eines neuen Hochwasserrückhaltebeckens haben wir von der Stadt Viersen und privaten Eigentümern in den letzten Jahren mehrere Grundstücke im Überschwemmungsgebiet des Hammer Baches rund um den Rothweg erworben. Dazu gehörte auch die mit alten Stallgebäuden bestandene Fläche. Die Flächen liegen im festgesetzten Überschwemmungsgebiet des Hammer Baches und sind daher ohnehin aus rechtlichen Gründen nur bedingt bebaubar. So ergab sich für uns Verband die Möglichkeit, die Hochwassersituation weiter zu entschärfen.

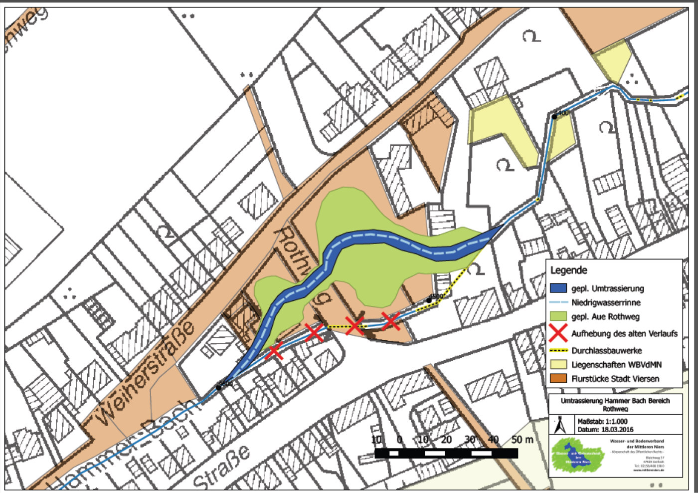
Überlegungen haben zu ersten Entwürfen geführt, die im Einklang mit der EG-Hochwassermanagementrichtlinie auch die Hochwasserrisiken für die flussabwärts unterhalb des Rothwegs liegenden Flächen deutlich verringern sollen. Dabei werden vor allem die bereits erworbenen Flächen genutzt. Der alte, durch die vorhandene Bebauung stark eingeengte Verlauf des Hammer Baches soll zugunsten eines neuen Gerinnes, das das Becken an seiner tiefsten Stelle durchfließt, aufgegeben werden. Gleichzeitig versuchen wir, den Hammer Bach auch im weiteren Verlauf bis zum Rückhaltebecken 4 zu renaturieren und wieder offen zu legen, da die vorhandenen langen Verrohrungen hydraulische Engpässe darstellen. Dazu stehen wir noch in Erwerbsverhandlungen mit weiteren Grundstückseigentümern.

Über den Wegfall der Straße „Rothweg“ oder von Parkplätzen brauchen sich die Anwohner keine Sorgen machen. Die Straße und die jetzt zu Parkzwecken verwendeten Flächen gehören weiterhin der Stadt Viersen und werden nicht in die Planung mit einbezogen.
Hintergrund der Planung ist die Hochwassersituation am Hammer Bach:

Der Hammer Bach fließt vom Quellgebiet in der Bockerter Heide durch die Ortsteile Ober- und Unterbeberich, Hamm und Düpp und mündet nach einer Lauflänge von 6,7 km südlich der Krefelder Straße (L29) in die Niers. Im Laufe der Jahre wurde der Hammer Bach in seinem Lauf begradigt und technisch ausgebaut. Die Siedlungsgebiete wurden mit der Zeit ebenfalls vergrößert und somit auch die Menge an Niederschlagswasser, die dem Hammer Bach zugeführt wird. Aufgrund der Hügel im Einzugsgebiet des Hammer Baches und der weitläufigen ackerbaulichen Nutzung führen Regenereignisse schnell zu einem Ansteigen des Wasserstandes im Hammer Bach. Hochwasservorsorge in Siedlungsgebieten ist ein vorrangiges Ziel zum Schutz der menschlichen Gesundheit, der Infrastruktur und der Naturräume. Durch die Umsetzung der Planung sollen die Ziele Hochwasserschutz und ökologische Verbesserung am Hammer Bach umgesetzt werden.
Ziel ist eine naturnahe, geschwungene Linienführung sowie die Schaffung naturnaher Retentionsflächen zur Hochwasserprävention. Mit der Maßnahme werden die in den 1990er Jahren errichteten fünf Hochwasserrückhaltebecken im Hauptfluss am Hammer Bach und vier Rückhaltebecken an den Nebengewässern des Hammer Baches ergänzt. Vor dem Hintergrund sich verändernder klimatischer Verhältnisse sind der Bau weiterer Becken und die Erweiterung vorhandener Becken in Planung.
Verfasser: Dr. Dagmar Spona